top of page
Create Your First Project
Start adding your projects to your portfolio. Click on "Manage Projects" to get started
Kitchen Reno
Date
Fall 2023
Role
Subcontract Interior Designer & Architectural Drafter Subcontract
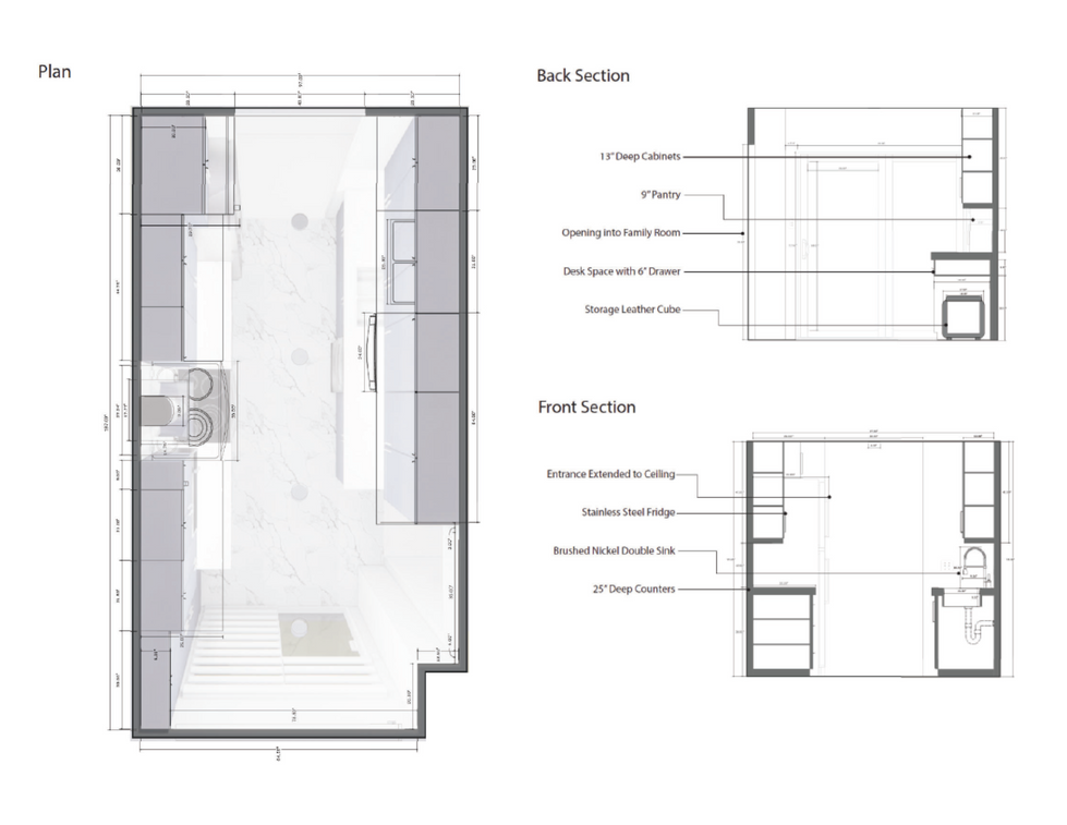
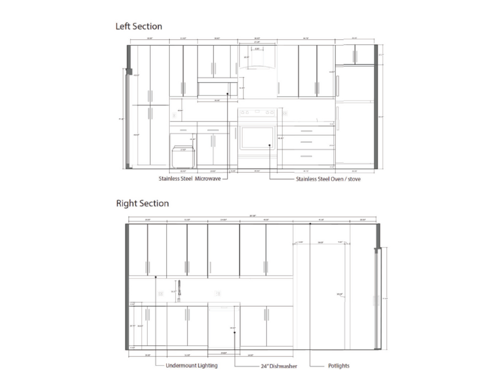
This renovation transformed a narrow hallway kitchen into a spacious, open-plan layout. By removing a dividing wall, the design expanded the kitchen footprint, improved circulation, and created a stronger connection to adjacent living areas. Updated finishes and cabinetry further enhanced the sense of light, openness, and functionality, while detailed floorplans and technical drawings guided construction.






bottom of page


